Quick Contact

Gradnja montažnih hiš d.o.o.

Spodnji Ivanjci 30
SI-9245 Spodnji Ivanjci
+386 30 453 331
info@gm-hise.com

House type We only use the best materials for our prefabricated houses.

House EVA

Eva is designed as a modern single-family house with more elegance and luxury of living.
House type
Atrium prefabricated house
Date
17 jan 2017
Living space
129,5 m²
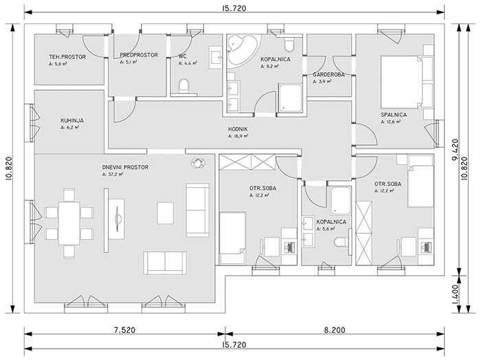
External dimensions
15,72 m x 10,82 m
Back to the typical houses

05 Eva - skicaEva is conceived as a modern family house with more elegance and luxury of living and with a touch of luxury for all those who want something more. For Eva, you need a slightly larger plot.


GROUND FLOOR
Living room (total)
- kitchen 6,2 m²
- dining room and living room
space 37,2 m²
43,4 m²
Bedroom 12,6 m²
Room 1 12,2 m²
Room 2 12,2 m²
Utility room 5,0 m²
Bathroom 1 8,2 m²
Bathroom 2 5,6 m²
Entrance porch 5,1 m²
WC 4,4 m²
Hallway 16,9 m²
Wardrobe 3,9 m²

Net space

129,5 m²


buiding phases

All materials used in the production process are the result of good development
cooperation with leading manufacturers of building materials.

Advantages of prefabricated construction

Advantages of prefabricated construction

GREEN BUILDING
The use of processed domestic wood has the least impact on the environment. Extraction, processing and transport use little energy and thus reduce CO2 emissions. Staying in a wooden prefabricated house is pleasant and healthy, since the construction of this type of building is dry and has a low level of moisture. Also, wood is a renewable material that can also be recycled/reused for other purposes.

OPTIMUM USE OF SPACE
Prefab wooden construction utilizes the maximum potential of space already in the design of buildings, because every detail of the house is designed with millimeter accuracy. The difference between classic construction and prefab is therefore in the purpose of using the space/floor plan layout.

EARTHQUAKE RESISTANCE
From a constructive point of view, wooden prefabricated construction is much lighter in weight than classical construction and is therefore more suitable for use on weakly load-bearing foundation floors and slabs, as it provides very good seismic resistance. At the same time, when it comes to vibrations, wood is a much more elastic and flexible material than, for example, brick or concrete.

FAST BUILDING
One of the biggest advantages of wooden prefabricated construction is fast and precise prefabricated construction directly on the construction site. So, thanks to the construction system, moving into the finished building is possible within 3-4 months from the start of construction.

LOW ENERGY HOUSE - ENERGY SAVING
The greatest advantage of wooden prefabricated construction is certainly its energy efficiency, since in terms of energy consumption in buildings, this type of construction is significantly less wasteful than classic construction. Individual layers of the building are significantly better insulated than in classic construction. Also, wood in itself is a much better insulator than, for example, brick or concrete. Our buildings reach the level of low-energy and passive houses.

Selection of typical houses

House Lena
House

LENA

Read more
House Karin
House

KARIN

Read more
House Sara
House

SARA

Read more
House Lili
House

LILI

Read more
House Eva
House

EVA

Read more
House Patricija
House

PATRICIA

Read more
House Lea
House

LEA

Read more
House Luna
House

LUNA

Read more
House Tamara
House

TAMARA

Read more
House Ana
House

ANA

Read more
Gradnja montažnih hiš d.o.o.
Gradnja montažnih hiš d.o.o., Spodnji Ivanjci 30
SI-9245 Spodnji Ivanjci, Slovenia
+386 30 453 331

maps