Hitri kontakt

Gradnja montažnih hiš d.o.o.

Spodnji Ivanjci 30
SI-9245 Spodnji Ivanjci
031 615 777
info@gm-hise.com

Tipske hiše Ceno oblikujemo izključno na podlagi vgrajenih materialov in izvedbe.

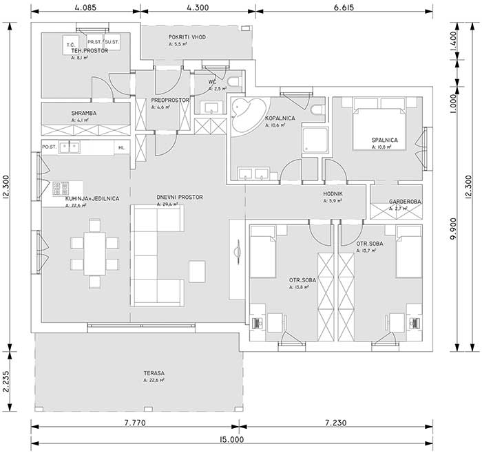
Hiša TAMARA

Hiša Tamara zaradi svoje velikosti ponuja pestrost in fleksibilnost prostorov.
Tip hiše:
Atrijska montažna hiša
Datum vnosa:
10 mar 2020
Stanovanjska površina:
156,9 m²
Zunanje dimenzije:
15,0 m x 12,3 m
Nazaj na izbor tipskih hiš

09 Tamara - skicaHiša Tamara zaradi svoje velikosti ponuja pestrost in fleksibilnost prostorov. Primerna za je večjo družino, ki rabi več prostora za življenje in bivanje. Njen izgled kot tudi zasnova je v duhu modernega stila arhitekture.


Kvadratura
Dnevni prostor (skupaj)
- kuhinja in
- jedilnica 22,6 m²
- dnevni prostor 29,4 m²
52,0 m²
Spalnica 10,8 m²
Otroška soba 1 13,7 m²
Otroška soba 2 13,8 m²
Tehnični prostor 8,1 m²
Kopalnica 10,6 m²
WC 2,5 m²
Garderoba 2,7 m²
Shramba 4,1 m²
Predprostor 4,6 m²
Hodnik 5,9 m²
Pokrit vhod 5,5 m²
Terasa 22,6 m²

SKUPAJ

156,9 m²


Velikost hiše (kvadratura) hiše se lahko popolnoma prilagodi vašim željam. Vsako hišo je možno izvesti v različnih oblikah in naklonih strešin (štirikapna, dvokapna, enokapna, ravna), odvisno od prostorsko ureditvenih pogojev za konkretno lokacijo.

Lahko vam ugodno izdelamo vso projektno dokumentacijo do vključno uporabnega dovoljenja.

Iz stvarnih potreb naših kupcev se je izoblikovalo več zasnov tipskih hiš. Tipske zasnove vam lahko pomagajo zgolj kot ideja, da med njimi hitro prepoznate tisto zasnovo, ki se najbolj ujema z vašimi željami. Lahko pa za vas izdelamo zasnovo hiše popolnoma v skladu z vašimi željami. To uporabimo skupaj z vami kot osnovo za izdelavo konkretnega projekta in ponudbe za vašo hišo. Arhitektura, projekt in hiša je tako izdelana popolnoma v skladu z vašimi željami. 

G.M.Hiše

Prelistajte naš katalog hiš 2020

faze2

Vse konstrukcijske sestave so rezultat našega dobrega razvojnega sodelovanja z vodilnimi proizvajalci gradbenih materialov.

veselidecember2015

Prednosti lesene montažne gradnje

OKOLJU IN ZDRAVJU PRIJAZNA GRADNJA
Uporaba predelanega domačega lesa najmanj obremenjuje okolje. Pridobivanje, predelava in prevoz porabljajo malo energije in tako zmanjšujejo izpuste CO2. Bivanje v leseni montažni hiši je prijetno in zdravo, saj je gradnja tovrstnega objekta suha in ima nizko stopnjo vlažnosti. Prav tako je les obnovljiv material, ki ga je možno tudi reciklirati/ponovno uporabiti za druge namene.

OPTIMALNA IZKORIŠČENOST PROSTORA
Lesena montažna gradnja že pri zasnovi objektov izkorišča maksimalno možnost prostorov, saj je vsak detajl hiše zasnovan na milimeter natančno. Razlika med klasično gradnjo in montažno je torej v njenem že predvidenem namenu izkoriščanja prostorov / tlorisne ureditve.

PROTIPOTRESNA ODPORNOST
Konstrukcijsko gledano je lesena montažna gradnja glede na obtežitev dosti lažja od klasične in zato bolj primerna za uporabo na slabo nosilnih temeljnih tleh in ploščah, ker ponuja zelo dobro potresno odpornost. Hkrati je pri tresljajih les dosti bolj elastičen in fleksibilen material kot denimo opeka ali beton.

HITRA GRADNJA
Ena izmed največjih prednosti lesene montažne gradnje je hitra in natančna montažna gradnja direktno na gradbišču. Tako je zaradi sistema gradnje možna vselitev v končan objekt že v 3-4 mesecih od pričetka gradnje.

ENERGETSKA VARČNOST
Največja prednost lesene montažne gradnje pa je sigurno njena energetska varčnost, saj je gledano s strani porabe energije v stavbah tovrstna gradnja dosti manj potratna od klasične. Posamezni sloji objekta so dosti boljše izolativno rešeni kot pri klasični gradnji. Prav tako je les že sam po sebi dosti boljši izolator kot denimo opeka ali beton. Naši objekti dosegajo nivo nizko-energetske in pasivne hiše.

Izbor tipski hiš

Hiša Lena
Hiša

LENA

Podrobneje
Hiša Karin
Hiša

KARIN

Podrobneje
Hiša Sara
Hiša

SARA

Podrobneje
Hiša Lili
Hiša

LILI

Podrobneje
Hiša Eva
Hiša

EVA

Podrobneje
Hiša Patricija
Hiša

PATRICIJA

Podrobneje
Hiša Lea
Hiša

LEA

Podrobneje
Hiša Luna
Hiša

LUNA

Podrobneje
Hiša Tamara
Hiša

TAMARA

Podrobneje
Hiša Ana
Hiša

ANA

Podrobneje
Gradnja montažnih hiš d.o.o.
Gradnja montažnih hiš d.o.o., Spodnji Ivanjci 30
SI-9245 Spodnji Ivanjci, Slovenija
031 615 777

maps